顺时永进,天道酬勤
136-3274-7997
公司简介
公司荣誉
服务范围
公司文化
组织架构
公司新闻
行业资讯
前沿技术
废水处理
废气处理
纯水饮用水净化
智慧水务
智慧集成建筑
污水运营
机制炭
AAO-MBR技术
AAAO-MBBR技术
厌氧氨氧化脱氮关键技术的突破及应用
MBR工艺相较于传统污水处理工艺的优势是什么?
ST-逆推式高效脱氮+好氧MBR”技术
垃圾中转站一体化处理设备
职位招聘
人才培养
职位发展
激励机制
联系方式
业务布局
主要合作伙伴
荣耀最新官网首页
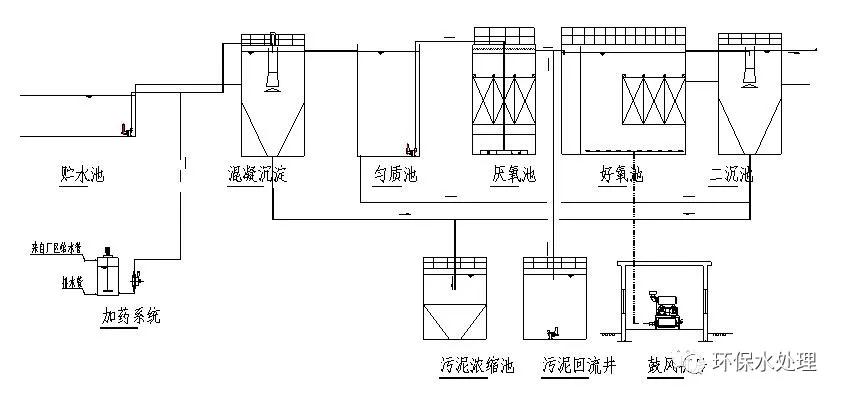
17种废水处理详细工艺流程图
版权所有©荣耀最新官网荣耀体育(中国)
粤ICP备18157824号
网站建设:合优网络